防滲膜卷膜套管連接裝置及其連接方法
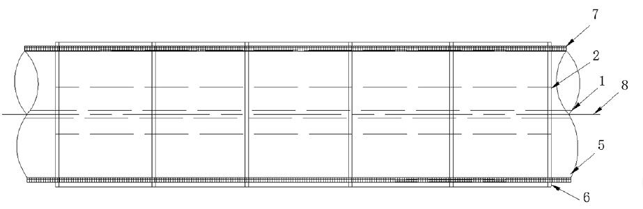
為了解決當下工程建設中防滲膜連接方式的弊端,探討如何加強連接部位的抗拉強度和防滲性能,本工程所用防滲膜采用了卷膜套管連接裝置。由圖1和圖2可知,建築基礎防滲膜卷膜套管連接裝置由內管5和外管6組成,內管5的管壁上沿縱向設有插口1,外管6的管壁上沿縱向設有卡口2,通過外管6將卷裹在內管5外側的防滲膜卷層7套住並卡緊。內管5上的插口1的開口寬度與卷頭8的兩膜厚度一致,卡口2的寬度不宜設置較寬,通常為1cm~2cm。防滲膜卷層7的厚度與內外管之間的環隙一致,以保證密實牢固。內管5的材質可選擇金屬管材(鋼管、鋁管等)或硬質PPR管材(PPR
熱水管、冷水管、鋁塑管等)。本工程考慮經濟實用性,內管5選用了PPR熱水管,外管6為PPR冷水管。


清理防滲膜兩膜連接部位,去除接縫範圍內膜上水泥漿、砂粒、泥土和汙垢等,保證膜麵清潔無塵土;對防滲膜一和防滲膜二的連接部位清理並檢查合格後,將兩膜連接邊3和4進行貼合、對齊,形成卷頭8;將卷頭8,即需要連接的兩膜中3和4的連接邊,從內管5上插口1的一端共同插入內管5中,然後連同兩膜一起卷動內管5,緊卷一圈或多圈,使兩膜中3和4卷裹於內管5外側形成防滲膜卷層7;通過外管6上的卡口2將內管5及卷裹於其外側的防滲膜卷層7一起套住,繼續旋緊防滲膜卷層7,以填充密實內管5和外管6之間的環空間隙,使兩部分防滲膜的3和4緊密地連接在一起;
上述4個步驟完成後即完成了一段新新膜或新舊膜之間的連接,重複上述步驟,逐段對兩防滲膜進行連接,連接時應使相鄰兩段內管之間及外管之間逐一靠緊,防止分段部位出現薄弱點而造成滲漏通道。兩部分防滲膜連接完成後,將其連接部分布設於預留膜下砂漿槽中,然後進行膜上砂漿鋪設和混凝土預製板的襯砌,徹底解決連接部位抗拉強度不足易滲漏的問題。膜上砂漿鋪設時應布滿預留坑槽。
同類文章排行
- 防滲91香蕉视频下载地址膜鋪設全流程解析!5 步避開 90% 工程隱患,防水效果提升 3 倍
- 影響複合91香蕉视频下载地址膜材料耐久性的主要因素有哪些?
- 如何加強渠道防滲工程的質量管理以HDPE91香蕉视频下载地址膜為例
- 蓄水池防滲中,塑料類和複合91香蕉视频下载地址膜均有應用
- 複合91香蕉视频下载地址膜在渠道防滲節水改造中的應用
- 渠道中應用91香蕉视频下载地址膜連接的質量控製要點
- 公路工程中91香蕉视频下载地址布的物理特性有哪些?
- 魚塘養殖91香蕉视频下载地址膜施工經驗介紹
- 91香蕉视频下载地址膜軋花成糙法和化學發泡成糙方法有什麽區別
- 膠接法施工91香蕉视频下载地址膜的水力性能變化及膠接法拚接要求